咨询服务电话:
18568169992

新乡市矿山起重机制造有限公司

双梁门式起重机

    相关产品:
  • MDG型单主梁吊钩门式起重机

  • MHL型门式起重机

  • MHE型门式起重机

立即咨询

双梁半门式起重机

产品型号: MGB型

起升吨位: 5、10、16/3.2、20/5吨

起升高度: 10-12米

适用跨度: 18-35米

工作级别: A5、A6


双梁半门式起重机产品介绍:

MGB型双梁半门式起重机一端架设在车间梁上,另一端在地面轨道上运行, 多用于露天及铁路沿线等场所的起重运输作业。具有结构紧凑、经济实惠、生产效率高等特点。起重机导电形式分为电缆卷筒和安*供电滑触线供用户选用。


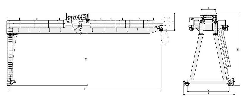
双梁半门式起重机结构简图:

双梁半门式起重机结构简图简图.jpg

实力厂家 · 现货直销

集研发、设计、制造、销售、安装、服务为一体的装备制造企业

种类齐全 · 应用广泛

产品种类繁多,型号齐全,广泛应用于机械、冶金、矿山等行业

自主研发 · 产品升级

自主开发的标准系列桥机,高度低、重量轻、轮压小,降低整体成本

精心服务 · 放心售后

针对性的满足客户的需求,为客户提供量身定制的解决方案

企业风采

plant and equipment

相关产品

Related products

MGB型双主梁半门式起重机

MHE型门式起重机

轨道式集装箱门式起重机

MDG型单主梁吊钩门式起重机

MHB型半门式起重机

MH型单梁门式起重机

联系人:新乡市矿山起重机制造有限公司

电话:18568169992

地址:河南新乡封丘起重工业园区

关注我们

版权所有 新乡市矿山起重机制造有限公司   免责声明