

MDG型吊钩门式起重机
产品型号: MDG型
起升吨位: 5-32/5吨
起升高度: 11米
适用跨度: 18-35米
工作级别: A5
单梁吊钩门式起重机产品介绍:
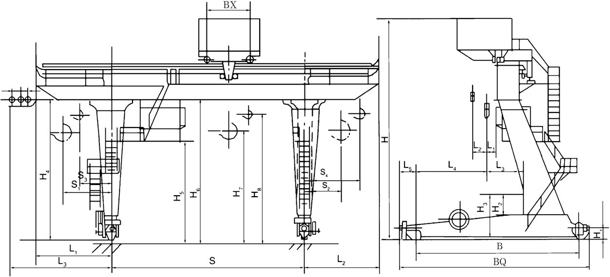
MDG型单主梁吊钩门式起重机由桥架,大车运行机构,小车,电气设备等组成。小车在一根单主梁上运行,通过水平或垂直反滚轮,安*反钩,其运行的安*性。**机械均在司机室内操作,灵活便捷。本机也可配用抓斗。
MDG型单梁吊钩门式起重机适用于露天仓库或铁路沿线进行一般的装卸和起重搬运工作。其工作环境温度-20℃-+40℃。
单梁吊钩门式起重机订购说明:
采购门式起重机请告知以下数据,以便我们能更快确认您的需求!
1、起重量;
2、跨度(轨道中心至导轨中心);
3、起升高度(钩中心接地);
4、是否需要外悬(请提供外悬长度);
5、需要导轨和电缆吗?(请提供运行长度);
6、其他其它要求如果您有更多的详细资料,请告知,我们会更*确的给出价格!
MDG型吊钩门式起重机结构简图:

plant and equipment
Related products
18568169992
扫一扫 关注我们