

MG型双主梁吊钩门式起重机
产品型号:MG型
起升吨位:zui大可500吨
起升高度:12米
适用跨度:18-35米
工作级别:A5
双梁门式起重机产品介绍:
MG型通用门式起重机(双梁吊钩门式起重机) 有桥架、大车运行机构、小车、电器设备等组成。桥架采用箱型双梁焊接结构,大车运行机构采用分别驱动,**机构均在操纵室操纵。
MG型双梁吊钩门式起重机适用于露天仓库、料场、铁路货站、港口码头等装卸搬运。还可以配以多种专*钩具进行多种其它作业。
MG型双梁吊钩门式起重机根据其形状可分为A型双梁门式起重机和U型双梁门式起重机.
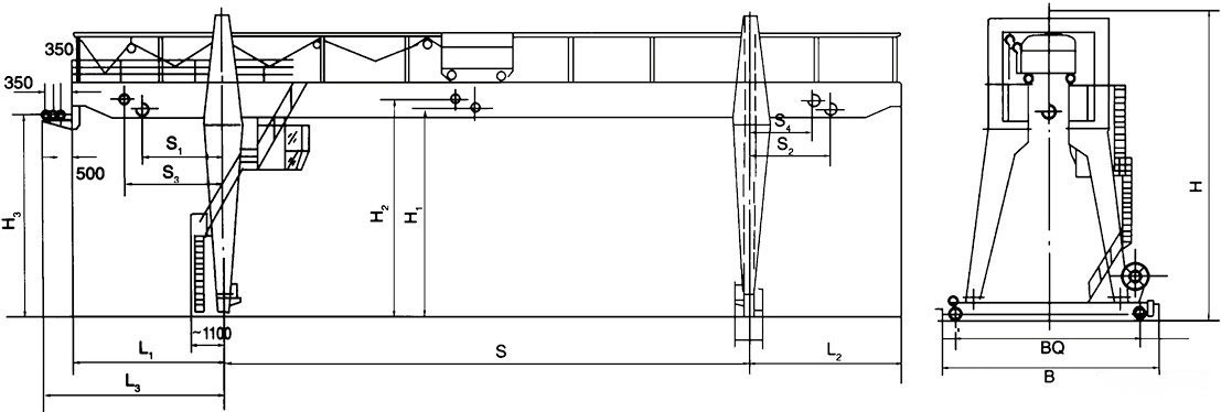
MG型双主梁吊钩门式起重机结构简图:

plant and equipment
Related products
18568169992
扫一扫 关注我们