咨询服务电话:
18568169992

新乡市矿山起重机制造有限公司

QN型两用桥式起重机

    相关产品:
  • LH葫芦双梁桥式起重机

  • QDY吊钩桥式铸造起重机

  • QC型电磁桥式起重机

立即咨询

QN型两用桥式起重机

产品型号: QN型

起升吨位: 5、10、16吨

起升高度: 22米

适用跨度: 10.5-31.5米

工作级别: A6


抓斗吊钩两用桥式起重机产品介绍:

QN型抓斗吊钩两用桥式起重机是指可用吊钩作为吊具,也可使用抓斗作为吊具的双梁桥式起重机。起重量5~16t;跨度10.5m~50m;工作级别A6~A8;广泛应用于起重运输、冶金、电力、港口码头等各行各业,**适用于冶金行业加料作业的工况。


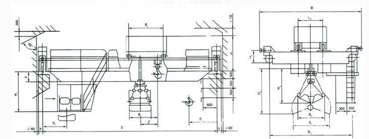
QN型两用桥式起重机结构简图:

QN型两用桥式起重机简图.jpg

实力厂家 · 现货直销

集研发、设计、制造、销售、安装、服务为一体的装备制造企业

种类齐全 · 应用广泛

产品种类繁多,型号齐全,广泛应用于机械、冶金、矿山等行业

自主研发 · 产品升级

自主开发的标准系列桥机,高度低、重量轻、轮压小,降低整体成本

精心服务 · 放心售后

针对性的满足客户的需求,为客户提供量身定制的解决方案

企业风采

plant and equipment

相关产品

Related products

QN型两用桥式起重机

QDY吊钩桥式铸造起重机

旋转电磁挂梁桥式起重机

QS双梁起重机

LHB型防爆桥式起重机

LH葫芦双梁桥式起重机

联系人:新乡市矿山起重机制造有限公司

电话:18568169992

地址:河南新乡封丘起重工业园区

关注我们

版权所有 新乡市矿山起重机制造有限公司   免责声明