

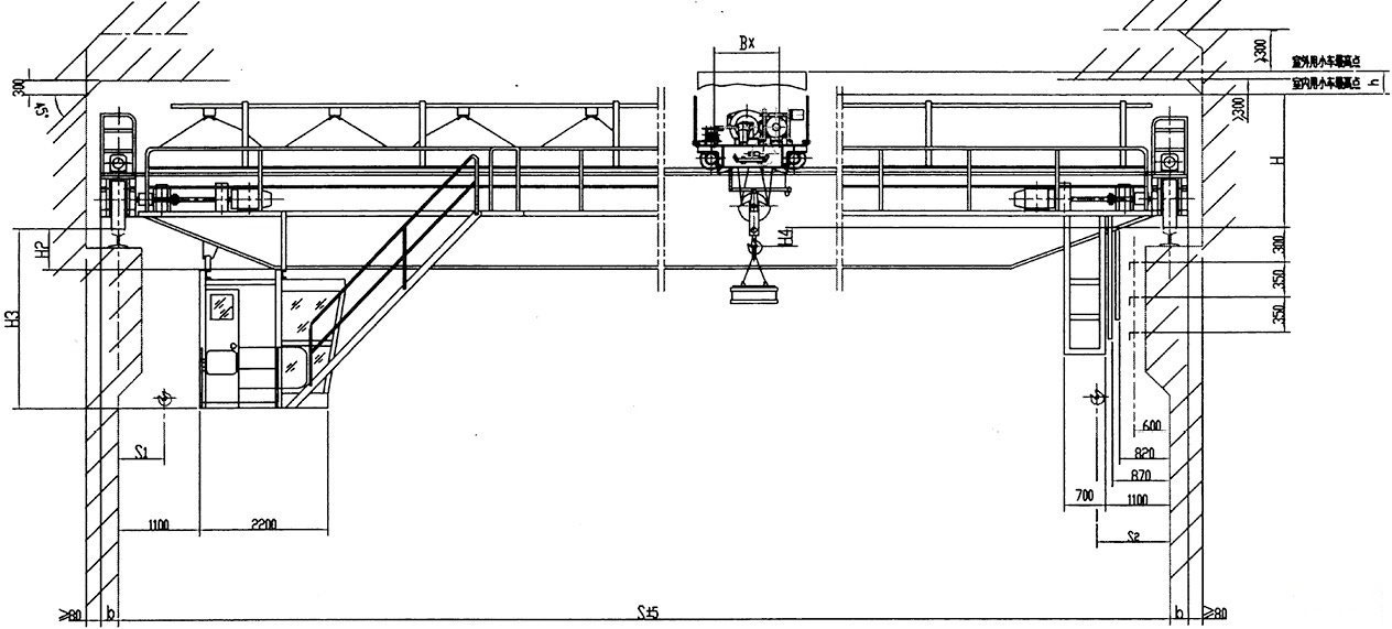
QC型电磁桥式起重机
产品型号:QC型
起升吨位:5-32/5吨
起升高度:18米
适用跨度:10.5-31.5米
工作级别:A6
电磁桥式起重机产品介绍:
QC型电磁桥式起重机由箱型桥架、大车运行机构、小车、电磁吸盘设备、电气设备五部分组成,**机构均在操纵室内操纵。当露天使用需带防雨设备。
QC型电磁桥式起重机带有可装卸的电磁吸盘,**适用于冶金工厂在室内或露天的固定跨度间较繁重的装卸及搬运具有磁性的黑色金属制品与材料。在机械厂、库房也常用来搬运钢料、铁屑等物料。
QC型电磁桥式起重机选用时,请注明工作环境的*高、*低温度和电源等。可根据用户要求进行更改设计。

plant and equipment
Related products
18568169992
扫一扫 关注我们