

QD型双梁桥式起重机
产品型号: QD型
起升吨位: 5-450吨
起升高度: 26米
适用跨度: 10.5-31米
工作级别: A5、A6
双梁桥式起重机产品介绍:
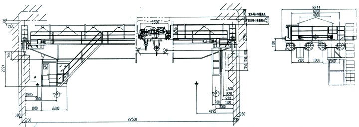
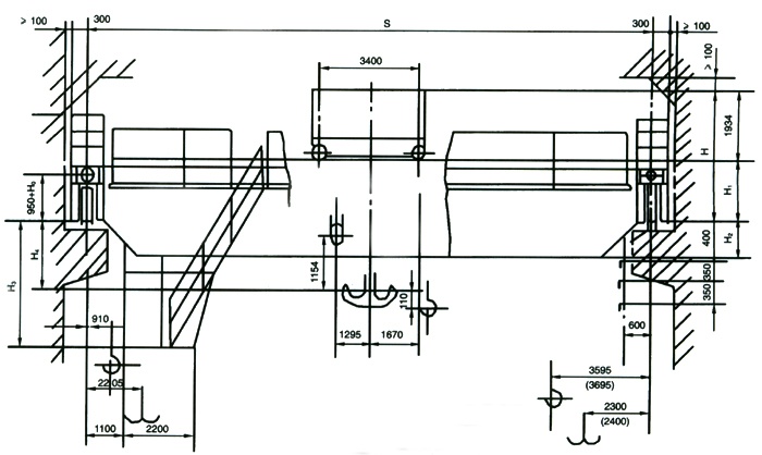
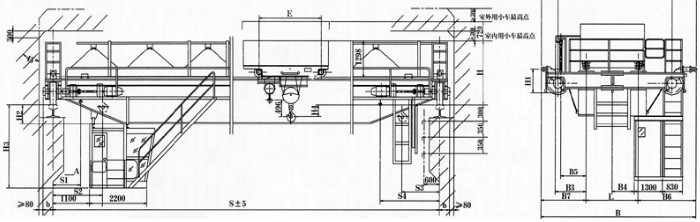
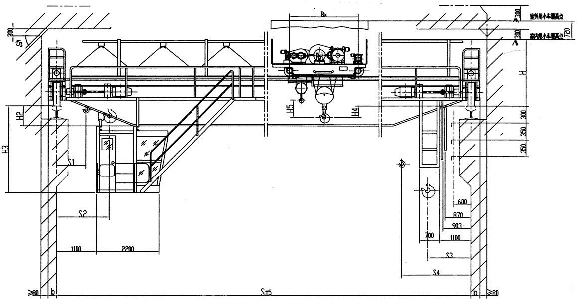
QD型双梁吊钩桥式起重机由箱形桥架,大车运行机构、小车、电气设备四部分构成。**机构均在操作室内操纵。露天使用时,带有防雨设备。
QD型吊钩桥式起重机按使用繁忙程度分为中级与重级两种工作制度;中级适用于机械加工,金属结构,装配等车间;重级适用于冶炼车间和参加连续生产的搬运工作。
双梁桥式起重机订购说明:
选用时应注明工作制度,工作环境的*高、*低气温及电源和类等技术要求,还可根据用户要求的跨度设计制造。
采购双梁吊钩桥式起重机请告知以下数据,以便我们能更快确认您的需求!
1、双梁吊钩桥式起重机的起重量;
2、跨度(轨道中心至轨道中心);
3、起升高度(钩中心到地面高度);
4、需要道轨和电缆吗?(请提供运行长度);
5、其他其它要求如果您有更多的详细资料,请告知,我们会更*确的给出价格!






plant and equipment
Related products
18568169992
扫一扫 关注我们