

QL型电磁挂梁桥式起重机
产品型号:QL型
起升吨位:(5+5)-(20+20)吨
起升高度:12-16米
适用跨度:10.5-31.5米
工作级别:A6、 A7
电磁挂梁桥式起重机产品介绍:
QL型电磁挂梁桥式起重机是以电磁吸盘作为吊具的起重设备,其挂梁方向分为与主梁平行和与主梁垂直两种,并在挂梁下方装有电磁吸盘,通过电磁吸盘完成物料搬运工作,
该起重机适用于钢厂仓库,用作搬运钢板、碎料等,允许在无火灾、爆炸危险和腐蚀性质的环境中工作,禁止吊运熔融金属、有毒、易燃易爆物品。电源为三相交流、50HZ、380V。
本起重机起重量包含电磁铁自重,起重机总重不包含电磁铁自重。
QL电磁挂梁桥式起重机,其挂梁方向分为与主梁平行和与主梁垂直两种,并在挂梁下方装有电磁吸盘,通过电磁吸盘完成物料搬运工作,该起重机适用于钢厂仓库,用作搬运钢板、碎料等,小车的运行机构采用重级工作制度,其起重量为5t+5t—20+20t,跨度为10.5m-31.5m,工作环境温度为-25℃~+40℃。允许在无火灾、爆炸危险和腐蚀性介质的环境中工作,禁止吊运熔融金属、有毒、易燃易爆物品。电源为三相交流、50HZ、380V。
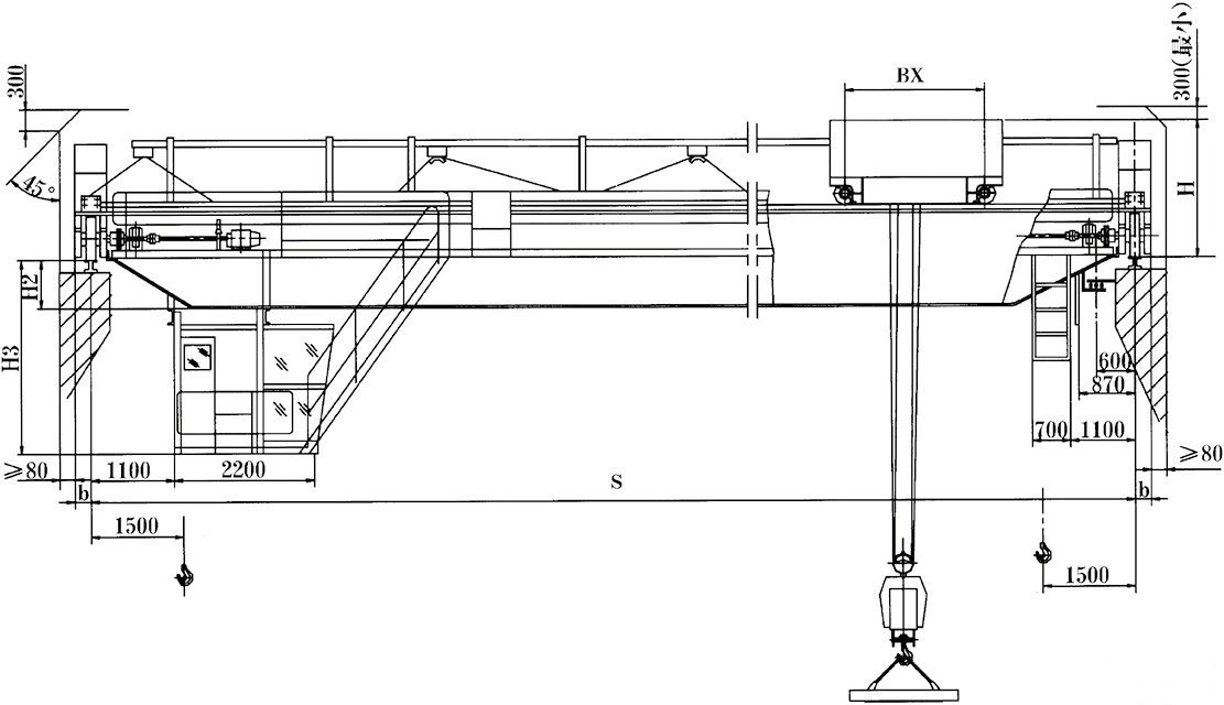
QL型电磁挂梁桥式起重机结构简图:


plant and equipment
Related products
18568169992
扫一扫 关注我们