

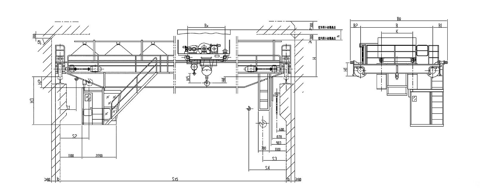
QB型防爆桥式起重机
产品型号: QB型
起升吨位:5-75吨
起升高度:14-22米
适用跨度:10.5-31.5米
工作级别:A4
双梁防爆起重机产品介绍:
QB型防爆桥式起重机适用于工厂内引爆能力不高于IIB或IIC级,引燃温度组别为T1-T4组的可燃性气体或蒸汽与空气形成的爆炸性气体混合物的场所,适用的危险区域为1区或2区。
用户在选用QB型防爆桥式起重机时应注明工作制度,工作环境的*高、*低气温及电源种类等技术要求,还可根据用户要求的跨度设计制造。
QB型防爆桥式起重机产品常规操作为地面操作,也可根据用户需要进行司机室操作,工作级别为A4中级。

plant and equipment
Related products
18568169992
扫一扫 关注我们