

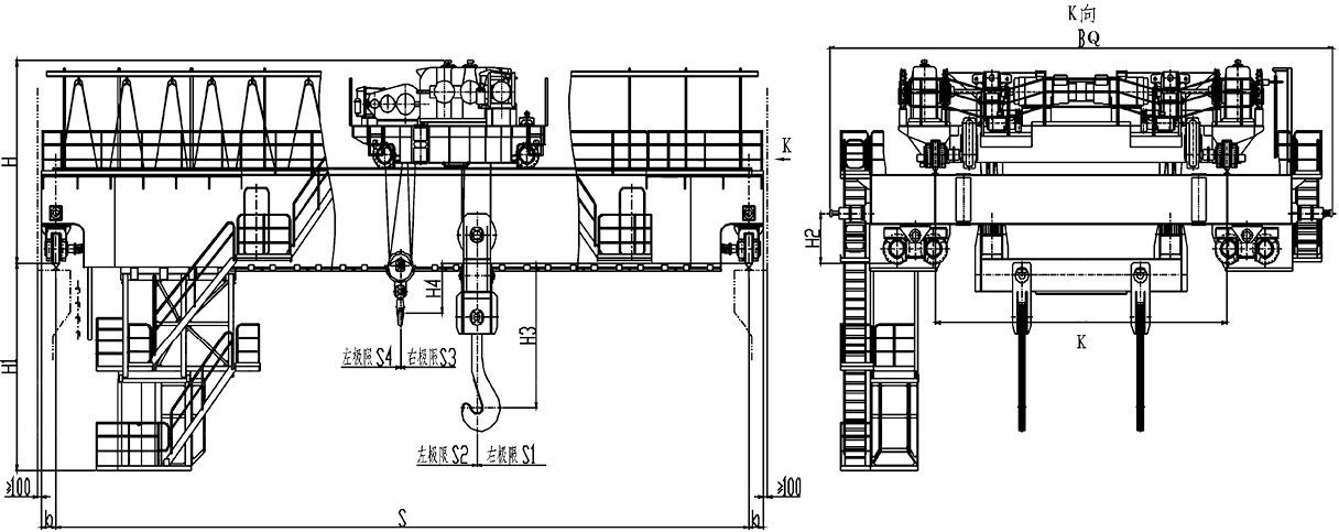
YZ型桥式铸造起重机
产品型号: YZ型
起升吨位: 100/32-320/80吨
起升高度: < 32米
适用跨度: < 28.5米
工作级别: A7
铸造起重机产品介绍:
YZ型冶金铸造桥式起重机是炼钢连铸工艺中的主要设备之一。主要用于转炉加料跨向转炉兑铁水,在精炼跨将钢水吊运至精炼炉或在钢水跨将钢水吊运至连铸回转大包台上。
YZ型冶金铸造起重机总体构造可分为:双梁双轨、四梁四轨、四梁六轨等形式。双梁双轨和四梁四轨形式一般用于中、大吨位铸造起重机,四梁六轨双小车形式一般用于吨位铸造起重机。
本公司设计制造的冶金铸造起重机技术*进、结构新颖、安*、经济耐用、维护简单。
我公司生产的YZ型冶金铸造起重机可以根据用户要求,提供如下功能:
1.各机构可调速;
2.吊具可旋转;
3.龙门钩钩距可变;
4.超载限制及报警;
5.载荷的称重及显示、PLC控制及故障检测、显示、记录和打印系统;
6.预防同跨起重机之间的碰撞。

plant and equipment
Related products
18568169992
扫一扫 关注我们