

LH型葫芦双梁起重机
产品型号: LH型
起升吨位: 5、10/3、16/3、20/5、32/10吨
起升高度: 6、9、12、18、24、30米
适用跨度: 7.5-25.5米
工作级别: A3-A5
电动葫芦桥式起重机介绍:
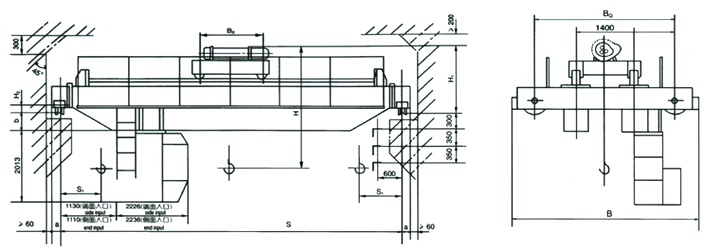
LH型电动葫芦桥式起重机根据国家标准JB/T3695-2008《电动葫芦桥式起重机》设计制造,是以固定式钢丝绳电动葫芦作为起升机构,安装在集中驱动的双轨小车上,与双梁桥架配套使用的双梁桥式起重机。与QD型电动双梁桥式起重机结构相似,都是由桥架、小车、大车和电气四个主要部件组成。
LH型电动葫芦双梁桥式起重机是一种横跨于厂房上空,沿轨道方向运动,小车做横向运动,吊钩作升降运动的起重吊运设备,适用于工矿企业的仓库、车间、料场装卸吊运工作,环境温度范围-20°C—+40°C,不适用于溶态赤热金属与具有强烈腐蚀性化学气体的工作场所。LH型电动葫芦双梁桥式是现代工业生产和起重运输中实现生产过程机械化、自动化的重要工具和设备。
LH型葫芦双设有司机室操纵和地面操纵两种形式。操作室有开式、闭式两种,可根据实际情况分为左或者右面安装两种形式。入门方向有侧面、端面、顶部三种,以满足用户在不同需要的情况下进行选择。
电动葫芦桥式起重机用途:
本系列产品主要用于机械制造车间、仓库、料场、水电站的转运、检修、装配、装卸等使用不太频繁的场所。







plant and equipment
Related products
18568169992
扫一扫 关注我们