

QZ型双梁抓斗桥式起重机
产品型号: QZ型
起升吨位: 5、10、16、20吨
起升高度: 18、20、26、28米
适用跨度: 10.5-31.5米
工作级别: A6
双梁抓斗桥式起重机产品介绍:
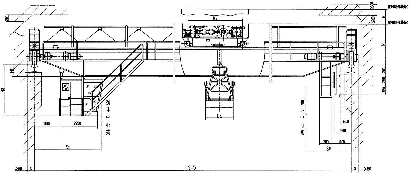
QZ型双梁抓斗桥式起重机由箱型桥架、大车运行机构、小车、抓斗、电气设备五部分组成,**机构均在操纵室内操纵。取物装置为双卷筒的四绳抓斗,抓斗可在任一高度张开和闭合,适用于抓取自然堆积状态下的散粒物料,当抓取物料颗粒大于200mm时需选用带齿抓斗。当抓取水下物料或其它物料时需在订货时**提出,当露天使用需带防水设备。本抓斗起重机具有结构简单,工作的特点。
双梁抓斗桥式起重机应用:
双梁抓斗起重机适用于冶金、水泥、化工及其他企业的仓库和车间在室内或露天和固定跨间从事矿石、石灰石、矿粉、焦炭、煤砂等散粒物的搬运工作。
QZ型双梁抓斗桥式起重机广泛适用于电厂、货场、车间、码头等进行散料的装卸运输。
本起重机均为重级工作制。工作级别有A6, A7, A8。也称为天车,航吊,桁吊,行吊,取物装置是四绳抓斗,火电厂干煤棚抓煤较广泛使用。
QZ型双梁抓斗桥式起重机**机构均在司机室内操作。进入司机室平台门的方向有:端入、侧入和顶入。
额定重量包括抓斗自重。
抓斗开启方向有平行和垂直主梁两种,下图为垂直主梁开启。矿山起重机械公司诚邀你您光临实地考察、订购。
电动双梁抓斗桥式起重机主要由箱形桥架、抓斗小车、大车运行机构、司机室和电气控制系统组成。取物装置为能抓取散装物料的抓斗。
抓斗小车上有开闭机构和起升机构,抓斗以四根钢丝绳分别悬挂在开闭机构和起升机构上。开闭机构驱动抓斗闭合,抓取物料,当斗口闭合后,立即开动起升机构,使四根钢丝绳平均受载进行起升工作。卸料时只开动开闭机构,斗口随即张开,倾斜物料。
比如:生产的QZ10吨双梁抓斗桥式起重机电动机型号功率介绍:跨度自10.5米到31.5米的电机功率一样:
工作级别A6级,驾驶室操作。抓斗开闭方向垂直主梁,进入操纵室的走台门向位置为端面。
起升和开闭电动机型号及功率:YZR280S-10/37kw*2 小车运行电动机型号及功率:YZR160M1-6/5.5kw
大车运行电动机型号及功率:YZR160L-6/11kw*2 。本公司产品知名度高、价格低,长期耐用,深得用户好评,欢迎选购。
QZ型抓斗桥式起重机适用冶金、水泥、化工及其它企业的仓库和车间在室内或露天和固定跨间从事矿石、石灰石、矿粉、焦炭、煤砂等散粒物的搬运工作。
QZ型电动双梁抓斗起重机属于重级(A6)工作制度,起重量包括抓斗自重。
QZ型电动双梁抓斗起重机由箱形桥架、大车运行机构、小车、抓斗、电气设备五部分组成,**机构均在操纵室内操纵。
QZ型电动双梁抓斗起重机,取物装置为双卷筒的四绳抓斗,结构简单工作。抓斗可在任一高度张开和闭合,当抓取物料颗粒在100mm以下时效果好,生产效率高,当抓取物颗粒大干200mm时需选用带齿抓斗。
QZ型电动双梁抓斗起重机,抓斗更适用于自然堆积状态下的散粒物料,当抓取水下物料或其它物料时须在定货的**提出,当露天使用须带防水设备。

plant and equipment
Related products
18568169992
扫一扫 关注我们