

QE型双梁桥式起重机
产品型号:QE型
起升吨位:5-16吨
起升高度:16米
适用跨度:10.5- 31.5米
工作级别:A5、A6
双小车双梁起重机产品介绍:
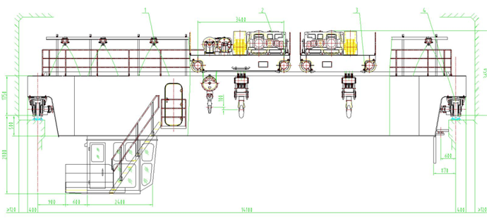
QE型双梁双小车吊钩桥式起重机主要由桥架、大车运行机构、小车、电器设备等组成。本起重机有两台小车,两小车可以同时使用,也可以单独使用。使用吊钩作为起升吊具。司机室平台入口方向分侧面入口,端面入口和顶面入口三种。大车导电安*滑触线、角钢滑线三种方式,应在司机室对侧。
QE型桥式起重机根据利用等级和载荷状态不同,分为A5、A6两种工作级别。
QE型双梁双小车吊钩桥式起重机特点:
A.主梁采用数控开割上拱度预拱曲线,主要角焊缝采用埋弧焊焊接。
B.小车导电装置采用一整条(无分段)的"C型槽+滑车"悬挂电缆。
C.大小车运行采用"软启动"电机。
D.小车自主开发设计,采用自动调节车轮高低,无"三脚猫" 现象。
双梁双小车桥式起重机适用于厂矿企业的车间或露天仓库吊运长件材料(木材,纸筒,管封,棒材)。
QE型桥式起重机主要由桥架、大车运行机构、小车、电器设备等组成。根据利用等级和载荷状态不同,分为A5、A6两种工作级别。本起重机有两台小车,两小车可以同时使用,也可以单独使用,使用于厂矿企业的车间或露天仓库吊运长件材料。司机室平台入口方向分侧面入口,端面入口和顶面入口三种,图示为侧面入口。大车导电有软电缆、安*滑触线、角钢滑线三种方式,应在司机室对侧。
QE型双梁桥式起重机结构简图:

plant and equipment
Related products
18568169992
扫一扫 关注我们